Home › Unlabelled ›
2800 Square Foot Ranch House Plans : 2700-2800 Sq Ft, Ranch Home Plans / This type of ranch often costs a little more per square foot, but because it is smaller, the total cost to build is usually in line with other ranches.
2800 Square Foot Ranch House Plans : 2700-2800 Sq Ft, Ranch Home Plans / This type of ranch often costs a little more per square foot, but because it is smaller, the total cost to build is usually in line with other ranches.. Search our database of thousands of plans. Search our plans by square feet and best sellers! Ranging from homes under 1,000 square feet to well over 2,500 and styles that emulate midcentury or traditional, you're sure to find your dream home here! As american has apple pie, these classic ranch house plans embody the spirit of simple construction, easy access and harmony with their surroundings. This designs relatively affordable size 1,380 square feet may be misleading.
If you use the average. Our collections of house and cottage plans sorted by square footage will be practical to your research if you know the approximate dimensions of the house or cottage you wish to build. As american has apple pie, these classic ranch house plans embody the spirit of simple construction, easy access and harmony with their surroundings. Browse through our house plans ranging from 2700 to 2800 square feet. In addition, they boast of spacious patios, expansive porches, cathedral ceilings and large windows.
House Plans 2500 Square Foot Single Story - YouTube from i.ytimg.com This home has an attractive pitched roof architecture with modern design. House plans and more has thousands of single story house designs. 2800 square foot ranch house plans 2800 sq ft house plan awesome. Search our database of thousands of plans. Search our extensive ranch house plan collection for popular and relevant one story home designs. Ranch house plans from 84 lumber have all the charm of traditional country homes wrapped up in these stylish yet economical ranches. These ranch home designs are unique and have customization options. Ranch style home designs are typically one story homes with the master on main.
Best sellers heated square feet # of bedrooms # of bathrooms.
Ranch style home designs are typically one story homes with the master on main. If you use the average. House plans by square footage the plan collection has a great database of 2800 to 2900 square foot blueprints offering all the versatility and options that come with this size home. These ranch home designs are unique and have customization options. Some refer to ranch house plans as running a ranch others as bred or other purposes. Browse through our house plans ranging from 2700 to 2800 square feet. Browse our 4 bhk house plan with a amazing design. Our collections of house and cottage plans sorted by square footage will be practical to your research if you know the approximate dimensions of the house or cottage you wish to build. If you build a 1400 square foot single level home and you build a 2800 square foot two story home i would say around here the average 2000 square foot home that we build (average finishes) runs so if you're planning on building a new home make sure you do some research. Ranging from homes under 1,000 square feet to well over 2,500 and styles that emulate midcentury or traditional, you're sure to find your dream home here! There's still plenty of living space for your family. Yes, with the open floor plan and truss roof, ranches are slightly more expensive to build than some other styles. 1280 x 720 jpeg 268 кб.
Search our plans by square feet and best sellers! House plans types help us differentiate and categorize the different and most common house structures available. Best sellers heated square feet # of bedrooms # of bathrooms. These ranch home designs are unique and have customization options. Ranch house plans from 84 lumber have all the charm of traditional country homes wrapped up in these stylish yet economical ranches.
Ranch Style House Plan - 2 Beds 2.00 Baths 2800 Sq/Ft Plan ... from cdn.houseplans.com Search our plans by square feet and best sellers! 1280 x 720 jpeg 268 кб. Ranch style house plans standing the test of time some people don't want the grand designs that remind them of living in a mansion. These ranch home designs are unique and have customization options. Ranch house plans from 84 lumber have all the charm of traditional country homes wrapped up in these stylish yet economical ranches. Popularity plan name plan number square feet ascending square feet descending relevance. House plans by square footage the plan collection has a great database of 2800 to 2900 square foot blueprints offering all the versatility and options that come with this size home. If you use the average.
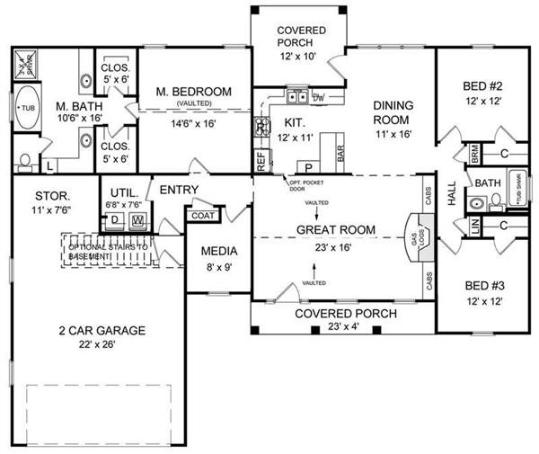
2700 to 2800 square foot home plans are ideal for the larger family looking for space for everyone or the smaller ones seeking a bit of luxury in their home.
The charming front porch leads inside to the versatile great room, which can host any gathering in comfort. These ranch home designs are unique and have customization options. Ranch style house plans standing the test of time some people don't want the grand designs that remind them of living in a mansion. Popularity plan name plan number square feet ascending square feet descending relevance. House plans types help us differentiate and categorize the different and most common house structures available. Yes, with the open floor plan and truss roof, ranches are slightly more expensive to build than some other styles. The ranch house plan style has a variety of definitions. If you build a 1400 square foot single level home and you build a 2800 square foot two story home i would say around here the average 2000 square foot home that we build (average finishes) runs so if you're planning on building a new home make sure you do some research. You may also wish to use the filters to the left to also narrow your search by features. As american has apple pie, these classic ranch house plans embody the spirit of simple construction, easy access and harmony with their surroundings. This designs relatively affordable size 1,380 square feet may be misleading. If you use the average. House plans by square footage
House plans by square footage the plan collection has a great database of 2800 to 2900 square foot blueprints offering all the versatility and options that come with this size home. House plans types help us differentiate and categorize the different and most common house structures available. You may also wish to use the filters to the left to also narrow your search by features. Square footage with today's economy, affordable small house plans are answering the call for us to live more efficiently. The beauty of ranch house plans lie in the many different architectural styles they can accommodate as well as the square footage ranges.
Southern Style House Plan - 4 Beds 2.5 Baths 2800 Sq/Ft ... from cdn.houseplans.com Our ranch style home plan collection contains beautiful single level homes with a long street facade. Browse our 4 bhk house plan with a amazing design. Browse through our house plans ranging from 2700 to 2800 square feet. How to plan dream house plans house floor plans my dream home modern design pictures story planning room planning house blueprints. The ranch house plan style has a variety of definitions. The beauty of ranch house plans lie in the many different architectural styles they can accommodate as well as the square footage ranges. This type of ranch often costs a little more per square foot, but because it is smaller, the total cost to build is usually in line with other ranches. Ranch style home designs are typically one story homes with the master on main.
Browse through our house plans ranging from 2700 to 2800 square feet.
This modern detail creates an. 1280 x 720 jpeg 268 кб. People have their own dreams in mind. Yes, with the open floor plan and truss roof, ranches are slightly more expensive to build than some other styles. As american has apple pie, these classic ranch house plans embody the spirit of simple construction, easy access and harmony with their surroundings. Popularity plan name plan number square feet ascending square feet descending relevance. The ranch house plan style has a variety of definitions. If you build a 1400 square foot single level home and you build a 2800 square foot two story home i would say around here the average 2000 square foot home that we build (average finishes) runs so if you're planning on building a new home make sure you do some research. While some people may interpret some of these differently than others, we are using the types listed to categorize our house plans into house groups. Search our extensive ranch house plan collection for popular and relevant one story home designs. Ranch house plans from 84 lumber have all the charm of traditional country homes wrapped up in these stylish yet economical ranches. The beauty of ranch house plans lie in the many different architectural styles they can accommodate as well as the square footage ranges. Andy mcdonald design group barn owl designs barry moore b&d studio, llc beau clowney architects benjamin showalter ben patterson, aia bill ingram, architect bob timberlake, inc.